人気のリノベーション事例を20件以上掲載!
30代男性が一人暮らしを楽しみながらリノベーションで形づくる"ジブン”らしさ
目黒通りから入る小道を少し行くと、どっしりと構えるレンガタイルの建物が現れます。そこに住み始めたのは仕事盛りの30代男性、ラジオやイベントディレクターをされているY様。以前にもリノベーション物件に住んでいたことがあり、住みやすさや快適さに十分な魅力を感じていました。
「部屋のもともとのポテンシャルが高いので、家具の配置や色使いをとことん楽しめるんです。生活にハリも出ます」。そんな風にリノベーションの魅力を語るY様の新居でのお気に入りは、メインのリビングスペース。「帰宅後、ソファで横になり、そのまま眠ってしまう。一週間くらい続くときも(笑)。それほどリラックスできる空間なんですよね」。
そんなお気に入りのLDKは趣味のもので彩られ、反対にワークスペース周辺は仕事関係のもので固められています。言葉どおり家具やファブリックでゾーニングしながら、明確に空間を使い分けているようです。デスクはちょうどよいサイズのものを探すのに苦労したそう。対面の造作シェルフの棚をあえて一段取り外して使うなど、自分らしい工夫を追求されている様子が伝わってきます。キッチンのシェルフも仕切りとなり、しかも圧迫感のない空間構成になっています。
「部屋のもともとのポテンシャルが高いので、家具の配置や色使いをとことん楽しめるんです。生活にハリも出ます」。そんな風にリノベーションの魅力を語るY様の新居でのお気に入りは、メインのリビングスペース。「帰宅後、ソファで横になり、そのまま眠ってしまう。一週間くらい続くときも(笑)。それほどリラックスできる空間なんですよね」。
そんなお気に入りのLDKは趣味のもので彩られ、反対にワークスペース周辺は仕事関係のもので固められています。言葉どおり家具やファブリックでゾーニングしながら、明確に空間を使い分けているようです。デスクはちょうどよいサイズのものを探すのに苦労したそう。対面の造作シェルフの棚をあえて一段取り外して使うなど、自分らしい工夫を追求されている様子が伝わってきます。キッチンのシェルフも仕切りとなり、しかも圧迫感のない空間構成になっています。
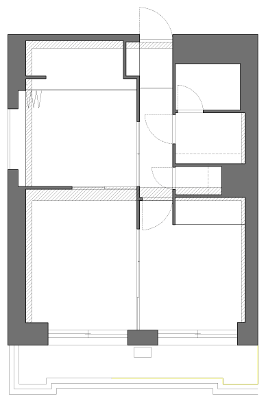
「田の字型」の間取りから自由度の高い「オープン型」への改修
ときにご自宅でもお仕事をされる職業柄、「“仕事場”と“リビング”と”寝室”を分けられたのが何よりよかった」と、生活空間の中にメリハリをつけられたことが最大のメリットと言います。
ここは以前、典型的な畳敷きのお部屋で、いわゆる「田の字型」の間取り。そんな小分けにされた狭小スペースのうち、2間を繋げたことで生まれたのが今回の“感覚”LDK。その他、ふかし壁に冷媒管を通すなど、目に見えない部分のリフォームもしっかり施されています。ベッドルームの押入はオープンクローゼットに変更して、スペースを確保。「古いものを今のニーズにあったものに変えられるのがいい」と語りつつ、今回を機に、「味があるものと今のものとが上手く融合できれば、さらに住みやすくなっていくのでは」と、住まい選びの可能性として浸透し始めた“リノベーションの未来”をより強く感じ取ったようです。
多様化していく暮らしに合わせて「住まい」のほうも多様化していく、そんな新しいライフスタイルを応援するリノベーションとなりました。
ここは以前、典型的な畳敷きのお部屋で、いわゆる「田の字型」の間取り。そんな小分けにされた狭小スペースのうち、2間を繋げたことで生まれたのが今回の“感覚”LDK。その他、ふかし壁に冷媒管を通すなど、目に見えない部分のリフォームもしっかり施されています。ベッドルームの押入はオープンクローゼットに変更して、スペースを確保。「古いものを今のニーズにあったものに変えられるのがいい」と語りつつ、今回を機に、「味があるものと今のものとが上手く融合できれば、さらに住みやすくなっていくのでは」と、住まい選びの可能性として浸透し始めた“リノベーションの未来”をより強く感じ取ったようです。
多様化していく暮らしに合わせて「住まい」のほうも多様化していく、そんな新しいライフスタイルを応援するリノベーションとなりました。
図面・概要
物件名
Gマンション
所在地
東京都目黒区碑文谷
構造
RC造6階建
築年月
1978年6月
専有面積
41.50㎡
家族構成
一人暮らし
施工費用
200万円台




































