人気のリノベーション事例を20件以上掲載!
素材が生む“やすらぎ”と“個性”
リビングに入るとまず目を引くのは、柔らかな自然光と、それを優しく受け止めるラワン材の造作家具。
木の質感や経年による色の深まりが、空間全体に上質な落ち着きを与えています。
無機質になりがちな現代の住まいに、職人の手仕事ならではの温もりをプラス。
素材の表情を活かしたデザインは、飾りすぎず、暮らす人の個性をそっと引き立ててくれます。
毎日の何気ない時間が、少し特別に感じられる——そんな心地よい空間です。
木の質感や経年による色の深まりが、空間全体に上質な落ち着きを与えています。
無機質になりがちな現代の住まいに、職人の手仕事ならではの温もりをプラス。
素材の表情を活かしたデザインは、飾りすぎず、暮らす人の個性をそっと引き立ててくれます。
毎日の何気ない時間が、少し特別に感じられる——そんな心地よい空間です。
暮らしをデザインする、機能美と調和
既存のキッチン扉を再利用しながら、全体をデザインしたリノベーション。
木目とコンクリート調の質感を組み合わせることで、空間にリズムと奥行きを生み出しました。
造作収納は、生活感を抑えながら機能性を高める工夫がところどころに。
使うたびに「ちょうどいい」と感じられるサイズ感や配置は、日々の暮らしを自然と整えてくれます。
時を重ねるほどに味わいが増し、愛着が深まっていく -そんな“暮らしをデザインする住まい”です。
木目とコンクリート調の質感を組み合わせることで、空間にリズムと奥行きを生み出しました。
造作収納は、生活感を抑えながら機能性を高める工夫がところどころに。
使うたびに「ちょうどいい」と感じられるサイズ感や配置は、日々の暮らしを自然と整えてくれます。
時を重ねるほどに味わいが増し、愛着が深まっていく -そんな“暮らしをデザインする住まい”です。
使用している商材について
キッチン:既存流用+ラワン材を塗装して上張り仕上げ
建具:造作建具/ラワン材+塗装仕上げ
洗面台:造作洗面台/ラワン材+塗装仕上げ
床材:フロアタイル/IS-2095 +フローリング/無垢フローリングドットコム/チークユニ
壁材:アクセントクロス/サンゲツ/SGB2263
建具:造作建具/ラワン材+塗装仕上げ
洗面台:造作洗面台/ラワン材+塗装仕上げ
床材:フロアタイル/IS-2095 +フローリング/無垢フローリングドットコム/チークユニ
壁材:アクセントクロス/サンゲツ/SGB2263
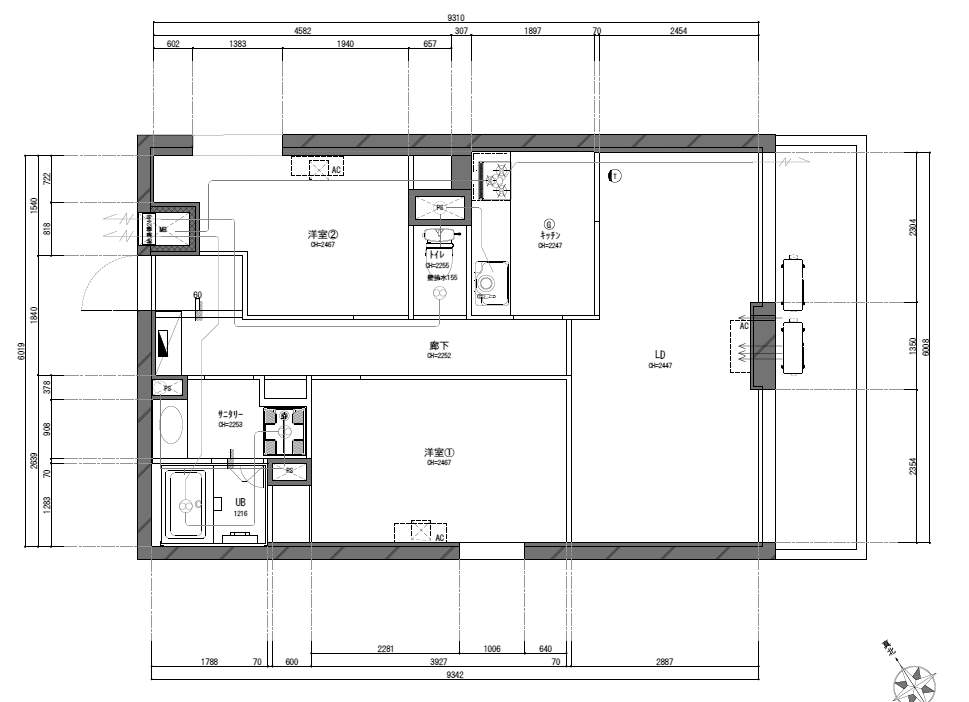
図面・概要
物件名
M様邸
所在地
東京都大田区仲六郷
構造
SRC
築年月
1992年
専有面積
約53㎡
家族構成
ご夫婦+お子様
施工費用
1300万円以上






































